Jimmy Heath House

The Jimmy Heath House is a Permanent Supportive Housing project based on the “Housing First” principle. The idea of “Housing First” is to get chronically homeless people into housing and then gradually work with them to address the issues that made them homeless in the first place such as alcoholism, drug addiction, and mental illness.

The design team, led by Jeff Raser, helped the developer, Over-the-Rhine Community Housing, obtain financing for the project through Low Income Housing Tax Credits and then provided the architectural expertise needed to obtain state and local historic preservation approvals during the Federal Section 106 review process.

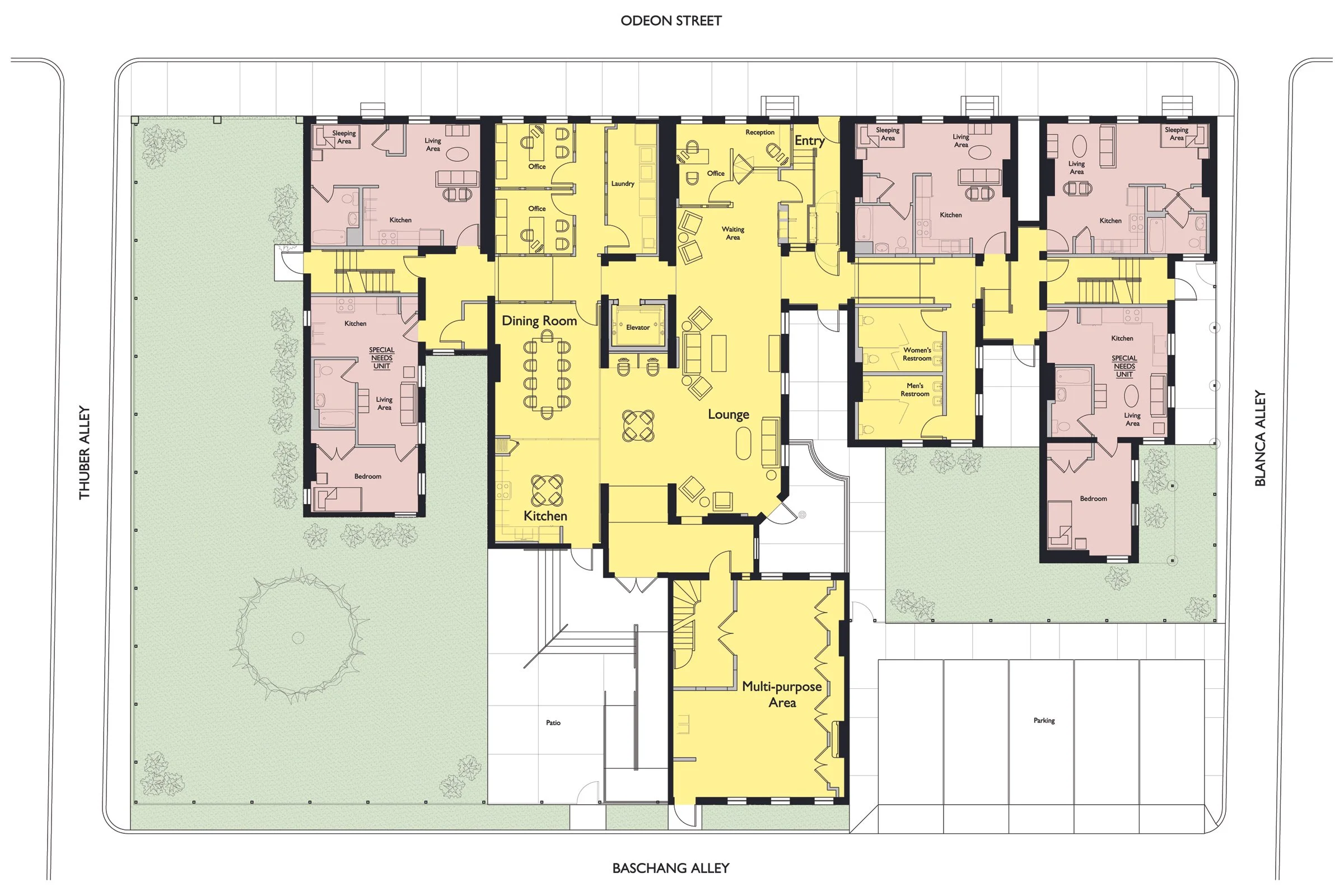
The Jimmy Heath House is designed to make residents feel the comfort and safety of a home, not a cold, institution.  By approaching the design of the building in this manner, 24 hour staff can get to know and help residents in a casual, un-intimidating manner at a pace that is most effective for each person.

The design team had to face the complexities of joining 5 adjacent historic buildings to insert 25 apartments and an assortment of support spaces. We connected the first floor of two of the buildings with an addition to create a single secure point of entry, a reception area, several offices and meeting rooms, and a large open living room with a kitchen and dining area.

©2019 Cincinnati Urban Design and Architecture, LLC. All rights reserved.